Cheyenne and Arapaho Tribes El Reno Indian Health Center, El Reno, Oklahoma
The El Reno Indian Health Center has been in the works for several years after the original building closed as a result of damage from a tornado in 2013. A portion of services were provided at a new location beginning in 2014, but were limited due to the size of the new facility. A groundbreaking was held in 2020 for the expansion of the facility.
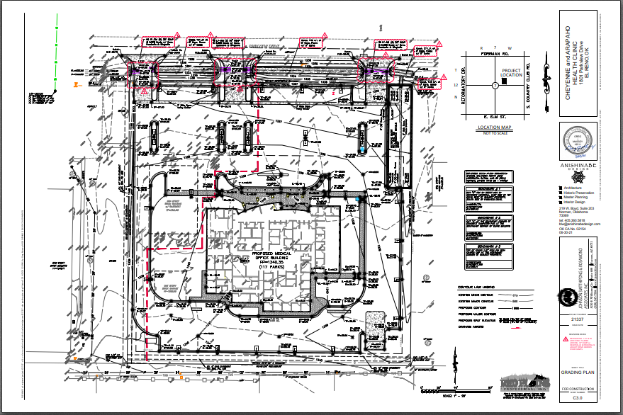
In February 2019, Red Plains was tasked with providing civil design services for the expanded facility, working in conjunction with the project architect, Anishinabe Design, Inc. of Norman, Oklahoma. The project consisted of a new 16,000 square foot building, remodel of an existing building, and related site improvements such as parking, building access sidewalks and site utilities. Red Plains provided a site dimensional control plan, grading and drainage plans, a detention study and report, site utility plan and a Pollution Prevention/erosion control plan.
The expanded facility opened in April 2022 while construction continued on Phase Two of the project. Phase Three will include additional services including behavioral health, expanded primary care, dental, audiology, physical therapy and radiology services. This facility currently serves 13,500 tribal citizens.
We are dedicated to continuing our collaborative working relationship with the Tribe to make a difference for the tribal citizens.

